Trong những năm gần đây, nhu cầu tìm kiếm bản vẽ thiết kế nhà 8x20m ngày càng tăng bởi diện tích đất 160m² được xem là “chuẩn vàng” để xây dựng tổ ấm tiện nghi. Với kích thước 8x20m, gia chủ dễ dàng lựa chọn nhiều phương án bố trí công năng từ nhà 1 tầng, 2 tầng cho đến 3 tầng hiện đại.
Bản vẽ chi tiết không chỉ giúp bạn hình dung được ngôi nhà tương lai mà còn tối ưu chi phí xây dựng, đảm bảo tính thẩm mỹ và công năng sử dụng. Cùng NAIS DESIGN tìm hiểu chi tiết ngay dưới bài viết này.
Tổng quan về bản vẽ thiết kế nhà 8x20m
Kích thước đất 8x20m là một trong những loại hình phổ biến tại các khu đô thị và vùng ngoại ô. Với chiều ngang 8m và chiều dài 20m, diện tích mặt bằng đủ rộng để bố trí các không gian sống linh hoạt, từ phòng khách, bếp, phòng ngủ cho đến sân vườn hoặc gara.
Ưu điểm nổi bật của lô đất 160m² chính là sự cân đối giữa chiều ngang và chiều sâu, tạo điều kiện cho kiến trúc sư dễ dàng triển khai các phong cách thiết kế khác nhau như hiện đại, tân cổ điển hay tối giản. Xu hướng hiện nay, nhiều gia chủ ưa chuộng nhà 2–3 tầng để tăng công năng, vừa đáp ứng thẩm mỹ vừa thuận tiện cho sinh hoạt.
Các mẫu bản vẽ thiết kế nhà 8x20m phổ biến
Khi lựa chọn thiết kế nhà 8x20m, mỗi gia đình sẽ có nhu cầu và ngân sách riêng. Chính vì vậy, các mẫu bản vẽ thường được chia thành nhiều dạng từ 1 tầng đến 3 tầng, có hoặc không có gara.
Bản vẽ thiết kế nhà 8x20m 1 tầng
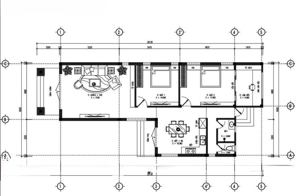
Đây là mẫu nhà phù hợp với gia đình ít thành viên hoặc người lớn tuổi muốn không gian sinh hoạt trên một mặt bằng. Bản vẽ thường bố trí phòng khách ở trung tâm, liên thông với bếp ăn để tạo sự thông thoáng. Hai đến ba phòng ngủ được sắp xếp về phía sau, đảm bảo riêng tư. Kiểu thiết kế này có ưu điểm chi phí thấp, dễ thi công và phù hợp với những vùng có diện tích đất rộng.

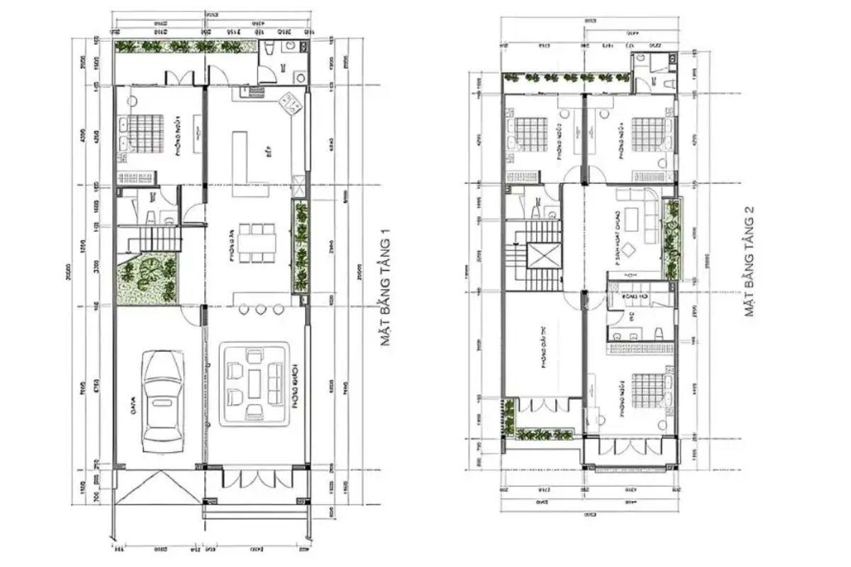
Bản vẽ thiết kế nhà 8x20m 2 tầng
Với nhu cầu sử dụng lớn hơn, bản vẽ nhà 2 tầng mang lại nhiều tiện ích. Tầng trệt thường dành cho gara, phòng khách, bếp và 1 phòng ngủ cho người lớn tuổi. Tầng 2 bố trí thêm 2–3 phòng ngủ, phòng thờ và ban công. Ưu điểm của thiết kế này là phân chia không gian rõ ràng, vừa tiện nghi vừa đảm bảo tính thẩm mỹ hiện đại.
Xem thêm: Nhà cấp 4 là gì? Có mấy loại và quy định về nhà cấp 4
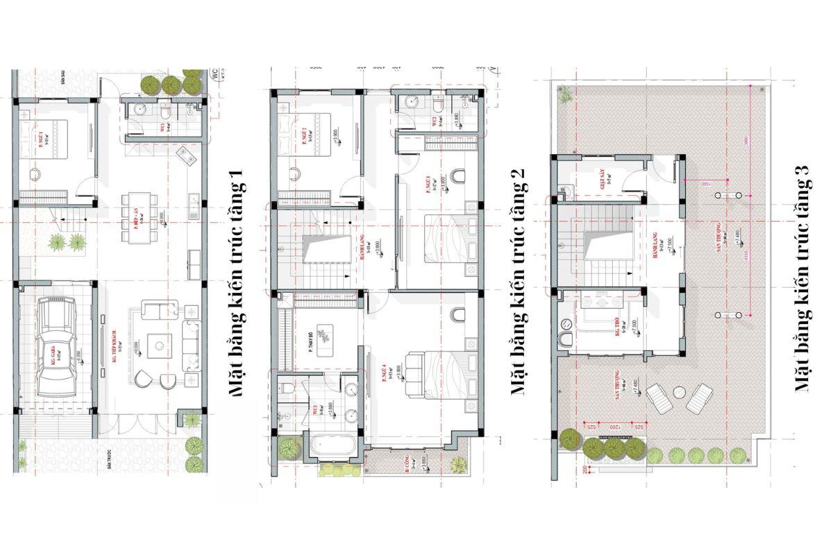
Bản vẽ thiết kế nhà 8x20m 3 tầng
Mẫu nhà 3 tầng dành cho gia đình đông thành viên hoặc muốn tích hợp nhiều công năng. Tầng 1 có thể thiết kế gara và khu sinh hoạt chung, tầng 2 cho không gian ngủ nghỉ, tầng 3 thường dùng làm phòng thờ, phòng làm việc hoặc sân thượng. Với chiều cao này, bản vẽ thường được thiết kế theo phong cách hiện đại, nhiều cửa sổ để lấy sáng và gió tự nhiên.

Bản vẽ thiết kế nhà 8x20m có gara ô tô
Với gia đình sở hữu ô tô, việc bố trí gara trong bản vẽ là cần thiết. Gara thường được đặt ở tầng trệt, có lối đi riêng để không ảnh hưởng sinh hoạt. Kiến trúc sư còn chú trọng hệ thống thông gió và chống ẩm mốc. Bản vẽ dạng này đặc biệt phù hợp ở đô thị, nơi việc đậu xe ngoài trời khó khăn.

Bản vẽ mặt bằng chi tiết nhà 8x20m
Một bản vẽ chuẩn phải thể hiện rõ ràng công năng từng khu vực. Với nhà 8x20m, mặt bằng thường được chia thành:
- Phòng khách: diện tích rộng, thường bố trí ngay sau cửa chính để đón tiếp khách.
- Bếp và phòng ăn: đặt liền kề phòng khách, có cửa sổ lớn để thoáng khí.
- Phòng ngủ: tùy nhu cầu, có thể từ 2–5 phòng ngủ. Thường bố trí ở phía sau hoặc tầng trên để đảm bảo yên tĩnh.
- Sân vườn: nếu diện tích cho phép, phần trước và sau nhà có thể thiết kế tiểu cảnh.
- Phòng thờ: thường đặt ở tầng cao nhất, phù hợp phong thủy.
Ngoài việc bố trí công năng, kiến trúc sư cũng tính toán lối đi, ánh sáng tự nhiên và hướng gió để ngôi nhà luôn thoáng mát.
Chi phí thiết kế và xây dựng nhà 8x20m
Tùy phong cách kiến trúc và vật liệu sử dụng, chi phí xây dựng nhà 8x20m sẽ dao động khác nhau. Trung bình, giá thiết kế bản vẽ chiếm khoảng 3–5% tổng chi phí.
| Hạng mục | Chi phí dự kiến (VNĐ) | Ghi chú |
| Thiết kế bản vẽ | 25 – 50 triệu | Tùy độ chi tiết, phong cách |
| Xây dựng thô | 6 – 8 triệu/m² | Vật liệu trung bình |
| Hoàn thiện | 10 – 12 triệu/m² | Vật liệu khá – cao cấp |
(*Chi phí chỉ mang tính chất tham khảo)
Như vậy, tổng chi phí cho một căn nhà 2 tầng diện tích 160m² sẽ dao động từ 1,5 – 2,5 tỷ đồng, tùy lựa chọn vật liệu và thiết kế.
Lưu ý khi lựa chọn bản vẽ thiết kế nhà 8x20m
Để có một bản vẽ tối ưu, gia chủ cần quan tâm đến nhiều yếu tố ngoài thẩm mỹ.
Chọn phong cách kiến trúc phù hợp
Mỗi phong cách đều mang lại một trải nghiệm sống khác nhau. Nhà hiện đại tạo sự trẻ trung, thoáng đãng. Tân cổ điển mang đến vẻ sang trọng, bền vững. Trong khi đó, phong cách tối giản lại giúp tiết kiệm chi phí và dễ bảo trì. Việc lựa chọn phong cách nên cân nhắc giữa sở thích cá nhân và ngân sách.
Tối ưu công năng sử dụng
Một bản vẽ tốt phải đáp ứng được nhu cầu sinh hoạt của cả gia đình. Không gian cần đảm bảo sự thông thoáng, ánh sáng tự nhiên và lối đi thuận tiện. Ví dụ, phòng khách nên liên thông với bếp, trong khi phòng ngủ bố trí tách biệt để có sự yên tĩnh.
Tuân thủ phong thủy và pháp lý xây dựng
Phong thủy luôn là yếu tố quan trọng khi thiết kế nhà. Vị trí phòng thờ, cửa chính, hướng bếp nên được tính toán hợp mệnh gia chủ. Ngoài ra, trước khi thi công, hồ sơ xin phép xây dựng phải được chuẩn bị đầy đủ để tránh rắc rối về pháp lý.
Xem thêm: Xin giấy phép xây dựng nhà cấp 4: Thủ tục, hồ sơ và chi phí mới nhất
Kết luận
Có thể thấy, bản vẽ thiết kế nhà 8x20m mang đến nhiều lựa chọn đa dạng, từ nhà 1 tầng tiết kiệm chi phí đến nhà 3 tầng hiện đại, tiện nghi. Việc tham khảo bản vẽ không chỉ giúp gia chủ hình dung rõ ràng công trình mà còn tối ưu chi phí xây dựng, đảm bảo công năng và phong thủy.
Nếu bạn đang có ý định xây dựng nhà trên diện tích 160m², hãy tìm đến đơn vị thiết kế uy tín như NAIS DESIGN để được tư vấn bản vẽ chi tiết, phù hợp với nhu cầu và ngân sách. Đây chính là bước khởi đầu quan trọng để biến giấc mơ về một ngôi nhà đẹp, tiện nghi thành hiện thực.






