Trong những năm gần đây, nhu cầu xây dựng bản vẽ thiết kế nhà cấp 4 4×20 ngày càng phổ biến nhờ tính tiện nghi, chi phí hợp lý và dễ thi công. Với diện tích mặt tiền 4m và chiều sâu 20m, mẫu nhà này phù hợp cho gia đình trẻ hoặc hộ 3–5 người muốn có không gian sống hiện đại nhưng vẫn tiết kiệm.
Trong bài viết này, NAIS DESIGN sẽ cùng bạn khám phá chi tiết các mẫu bản vẽ phổ biến, cách bố trí công năng hợp lý và những lưu ý quan trọng trước khi xây dựng.
Ưu điểm của bản vẽ thiết kế nhà cấp 4 4×20
Một trong những lý do khiến nhiều gia đình lựa chọn mẫu nhà này chính là sự cân bằng giữa chi phí, công năng và tính thẩm mỹ. Bản vẽ thiết kế nhà cấp 4 4×20 có nhiều ưu điểm rõ rệt, phù hợp nhu cầu đa dạng.
Tiết kiệm chi phí xây dựng nhưng vẫn đầy đủ công năng
Với diện tích vừa phải, thiết kế này không tốn kém quá nhiều vật liệu và nhân công. Tuy nhiên, nhờ bố trí khoa học, ngôi nhà vẫn đáp ứng đủ các không gian cần thiết như phòng khách, bếp, phòng ngủ và vệ sinh. Đây là lựa chọn hoàn hảo cho gia đình muốn tối ưu ngân sách.
Phù hợp cho gia đình nhỏ từ 3–5 người
Diện tích 80m² đủ để sắp xếp 2–3 phòng ngủ tiện nghi. Điều này giúp đáp ứng nhu cầu sinh hoạt cơ bản của vợ chồng trẻ có con nhỏ hoặc gia đình nhiều thế hệ nhưng ít người.
Thời gian thi công nhanh chóng, dễ dàng mở rộng sau này
Nhà cấp 4 4×20 có kết cấu đơn giản nên thời gian thi công nhanh, thường chỉ mất 2–3 tháng. Ngoài ra, gia chủ có thể dễ dàng nâng tầng hoặc cơi nới trong tương lai khi nhu cầu thay đổi.
Xem thêm: Thiết kế nội thất chung cư – Dịch vụ chuyên nghiệp từ NAIS DESIGN
Các mẫu bản vẽ thiết kế nhà cấp 4 4×20 phổ biến
Hiện nay có nhiều mẫu thiết kế khác nhau để gia đình lựa chọn. Tùy vào số lượng thành viên và nhu cầu sử dụng, bản vẽ thiết kế nhà cấp 4 4×20 có thể linh hoạt bố trí.
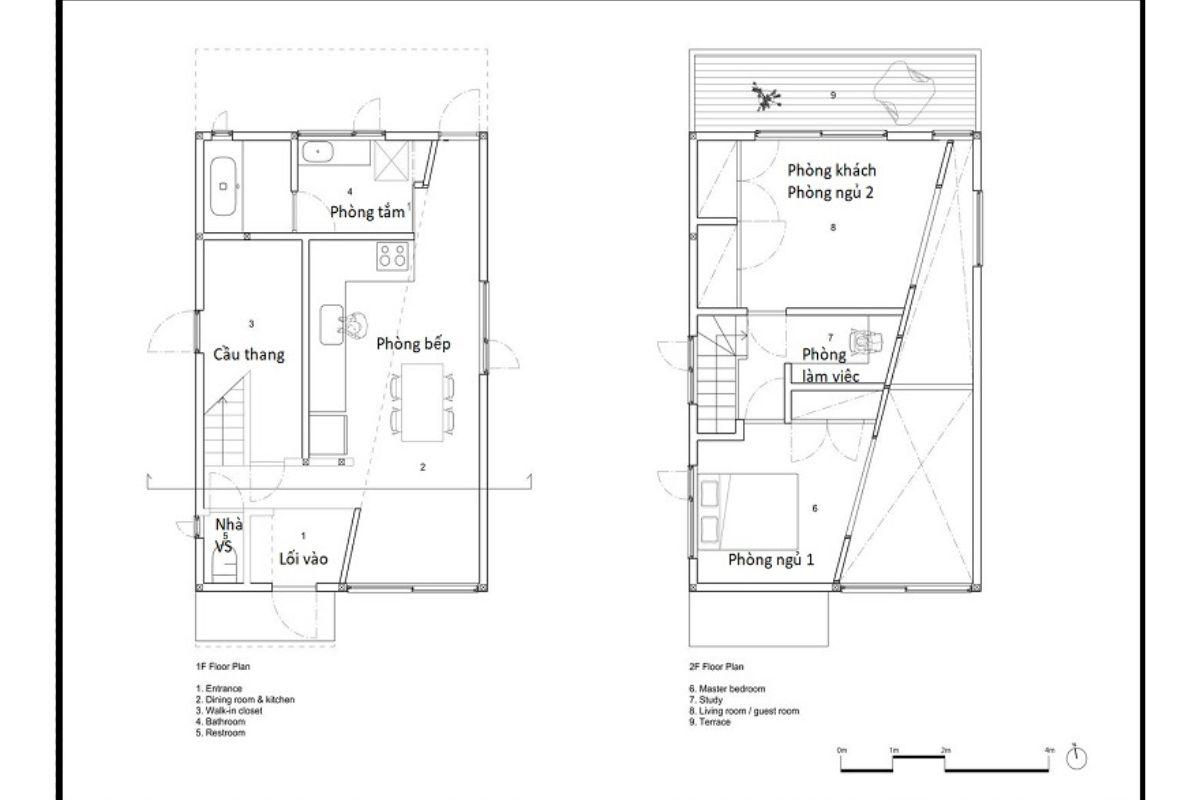
Bản vẽ nhà cấp 4 4×20 có 2 phòng ngủ tiện nghi
Mẫu này thường gồm phòng khách rộng rãi, bếp liên thông với bàn ăn và 2 phòng ngủ đặt ở cuối nhà. Thiết kế phù hợp gia đình 3–4 người, tối ưu sự riêng tư và thoáng mát.

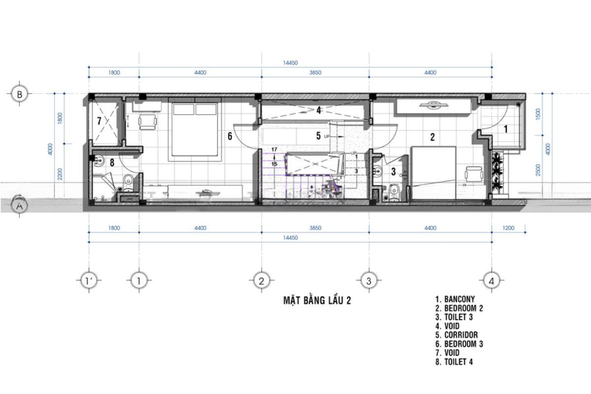
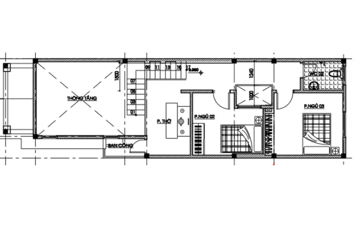
Bản vẽ nhà cấp 4 4×20 có 3 phòng ngủ cho gia đình đông người
Với cách bố trí 3 phòng ngủ, ngôi nhà vẫn giữ được sự gọn gàng nhờ sắp xếp hành lang hợp lý. Đây là giải pháp lý tưởng cho gia đình 4–5 người, đặc biệt là có con lớn cần không gian riêng.

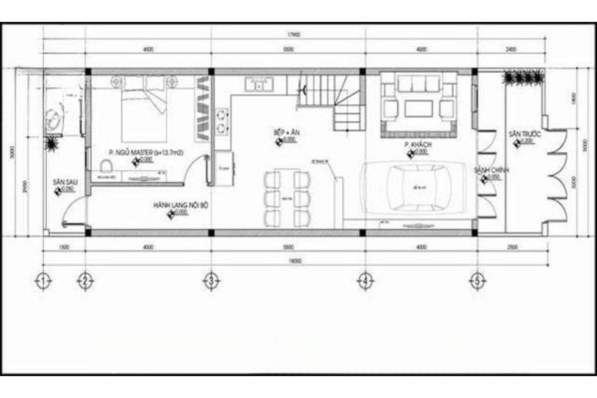
Bản vẽ nhà cấp 4 4×20 có sân trước và giếng trời thoáng mát
Để tăng sự thông thoáng, nhiều thiết kế thêm khoảng sân trước để xe và giếng trời lấy ánh sáng tự nhiên. Phong cách này không chỉ đẹp mắt mà còn giúp tiết kiệm điện năng, mang lại cảm giác gần gũi thiên nhiên.

Chi phí xây dựng nhà cấp 4 4×20 mới nhất
Chi phí là mối quan tâm hàng đầu khi xây dựng nhà. Với diện tích 4x20m, mức chi phí sẽ phụ thuộc vào thiết kế, vật liệu và mức độ hoàn thiện nội thất.
Yếu tố ảnh hưởng đến chi phí xây dựng
- Chất lượng vật liệu xây dựng (gạch, xi măng, sắt thép)
- Mức độ hoàn thiện nội thất (cơ bản hay cao cấp)
- Địa điểm xây dựng và giá nhân công từng khu vực
- Có hay không thêm sân, giếng trời hoặc mái thái
Bảng dự toán chi phí tham khảo
| Hạng mục | Chi phí dự kiến (VNĐ) |
| Phần thô | 300 – 350 triệu |
| Hoàn thiện nội thất | 150 – 200 triệu |
| Tổng | 450 – 550 triệu |
(*Chi phí chỉ mang tính chất tham khảo)
Với mức chi phí này, gia đình hoàn toàn có thể sở hữu một ngôi nhà hiện đại, đầy đủ tiện nghi và phù hợp ngân sách.
Lưu ý khi thiết kế bản vẽ nhà cấp 4 4×20
Khi lựa chọn xây dựng bản vẽ thiết kế nhà cấp 4 4×20, gia chủ cần quan tâm nhiều yếu tố để vừa đảm bảo tính thẩm mỹ, vừa tối ưu công năng sử dụng. Một số lưu ý dưới đây sẽ giúp ngôi nhà trở nên khoa học, bền vững và phù hợp phong thủy.
Tối ưu công năng cho từng không gian
Với chiều ngang hẹp (4m) nhưng chiều sâu dài (20m), việc bố trí công năng cần sự tính toán cẩn thận. Thông thường, phòng khách nên đặt ngay cửa chính, sau đó là bếp và phòng ăn. Các phòng ngủ nên được sắp xếp cuối nhà để đảm bảo sự riêng tư. Ngoài ra, nên tận dụng hành lang làm lối đi, tránh chia nhỏ không gian gây bí bách.
Đảm bảo yếu tố phong thủy trong thiết kế
Phong thủy đóng vai trò quan trọng đối với cuộc sống và sự thịnh vượng của gia đình. Khi thiết kế bản vẽ, gia chủ cần lưu ý hướng cửa chính, vị trí bếp và phòng ngủ. Ví dụ, bếp nên tránh đặt đối diện cửa chính hoặc gần nhà vệ sinh. Phòng ngủ nên có cửa sổ để đón ánh sáng tự nhiên, tạo sự cân bằng năng lượng tích cực.
Xem thêm: Dịch vụ thiết kế nội thất nhà phố – NAIS DESIGN
Lựa chọn vật liệu bền đẹp và tiết kiệm
Một ngôi nhà cấp 4 có tuổi thọ lâu dài phụ thuộc nhiều vào vật liệu xây dựng. Gia chủ nên chọn gạch nung chất lượng, xi măng chuẩn mác, thép đạt tiêu chuẩn và sơn chống thấm tốt để tăng độ bền. Bên cạnh đó, có thể tiết kiệm chi phí bằng cách dùng vật liệu trong nước, hạn chế dùng vật liệu nhập khẩu quá đắt đỏ nếu ngân sách hạn chế.

Thiết kế không gian mở và ánh sáng tự nhiên
Để khắc phục nhược điểm hẹp ngang, bản vẽ nhà cấp 4 4×20 nên ưu tiên thiết kế không gian mở. Cửa kính lớn, giếng trời hoặc cửa sổ bên hông giúp lấy sáng và gió tự nhiên, tạo cảm giác thoáng đãng. Không gian mở cũng giúp kết nối phòng khách, bếp và sân vườn, mang lại sự thoải mái cho gia đình.
Dự trù chi phí và kế hoạch thi công hợp lý
Ngoài yếu tố thẩm mỹ và công năng, gia chủ cần tính toán ngân sách chi tiết trước khi xây dựng. Việc dự trù chi phí từ phần thô, hoàn thiện đến nội thất sẽ giúp hạn chế phát sinh. Đồng thời, nên chọn đơn vị thi công uy tín, có hợp đồng rõ ràng để đảm bảo tiến độ và chất lượng công trình.
Kết luận
Nhìn chung, bản vẽ thiết kế nhà cấp 4 4×20 là lựa chọn tối ưu cho gia đình nhỏ muốn xây dựng một ngôi nhà đẹp, tiết kiệm và tiện nghi. Với cách bố trí hợp lý, chi phí vừa phải và khả năng mở rộng trong tương lai, mẫu nhà này ngày càng được nhiều người yêu thích.
Để đảm bảo ngôi nhà phù hợp với nhu cầu sinh hoạt, phong thủy và ngân sách, bạn nên tham khảo ý kiến từ kiến trúc sư chuyên nghiệp. Đặc biệt, lựa chọn đơn vị thiết kế uy tín như NAIS DESIGN sẽ giúp bạn có được bản vẽ chi tiết, khoa học và thẩm mỹ, là nền tảng vững chắc để hiện thực hóa tổ ấm mơ ước.






