Trong những năm gần đây, xu hướng xây dựng bản vẽ thiết kế nhà gác lửng 5×20 ngày càng phổ biến. Với diện tích mặt tiền 5m và chiều dài 20m, kiểu nhà này vừa đảm bảo tính thẩm mỹ vừa tối ưu công năng. Đặc biệt, tầng lửng mang lại cảm giác rộng rãi, tiết kiệm chi phí mà vẫn đáp ứng đầy đủ nhu cầu sinh hoạt của gia đình hiện đại.
Trong bài viết này, NAIS DESIGN sẽ cùng bạn khám phá chi tiết các mẫu bản vẽ nhà gác lửng 5×20 phổ biến, cách bố trí công năng hợp lý và những lưu ý quan trọng cần biết trước khi bắt đầu xây dựng.
Tổng quan về bản vẽ thiết kế nhà gác lửng 5×20
Nhà gác lửng là dạng công trình có thêm một tầng lửng nằm xen giữa tầng trệt và tầng trên, không chiếm toàn bộ diện tích sàn. Với diện tích đất 5×20, bản vẽ thiết kế phù hợp sẽ giúp gia chủ khai thác triệt để công năng.
Một bản vẽ thiết kế nhà gác lửng 5×20 đóng vai trò quan trọng trong việc định hình không gian, phân bổ hợp lý diện tích, đồng thời đảm bảo tính kỹ thuật và phong thủy cho ngôi nhà.
Ưu điểm nổi bật của mẫu nhà gác lửng 5×20
Nhà gác lửng mang lại nhiều lợi ích thực tế, đặc biệt khi áp dụng trên diện tích đất 5x20m.
- Tăng diện tích sử dụng: Gác lửng giúp nhân đôi không gian mà không cần xây thêm tầng, phù hợp gia đình đông người.
- Tối ưu công năng: Có thể bố trí thêm phòng ngủ, phòng thờ hoặc khu làm việc trên tầng lửng.
- Đa dạng phong cách: Từ hiện đại, tối giản cho đến tân cổ điển, dễ dàng biến tấu theo sở thích gia chủ.
- Chi phí hợp lý: So với xây thêm tầng, nhà gác lửng tiết kiệm hơn nhưng vẫn đảm bảo tiện nghi.
Nhờ những ưu điểm này, nhiều gia đình lựa chọn bản vẽ thiết kế nhà gác lửng 5×20 như một giải pháp nhà ở bền vững.
Các bản vẽ mặt bằng nhà gác lửng 5×20 phổ biến
Tùy theo nhu cầu sử dụng, bản vẽ có thể được triển khai với nhiều cách bố trí.
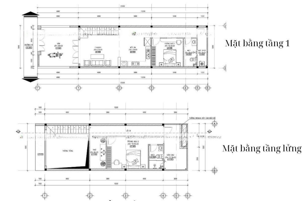
Bản vẽ nhà gác lửng 5×20 có 2 phòng ngủ
Mẫu này thường phù hợp gia đình trẻ hoặc ít thành viên. Tầng trệt gồm phòng khách, bếp – ăn và 1 phòng ngủ. Tầng lửng tận dụng làm phòng ngủ thứ hai hoặc phòng làm việc. Với cách bố trí này, ngôi nhà vừa gọn gàng vừa tạo cảm giác rộng rãi.
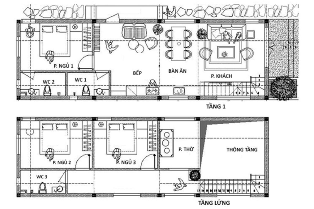
Bản vẽ nhà gác lửng 5×20 có 3 phòng ngủ
Với gia đình 3–5 người, bản vẽ 3 phòng ngủ là lựa chọn tối ưu. Tầng trệt bố trí phòng khách, bếp và 1 phòng ngủ lớn, trong khi tầng lửng phân chia 2 phòng ngủ nhỏ. Nhờ đó, mọi thành viên đều có không gian riêng nhưng vẫn giữ được sự gắn kết.

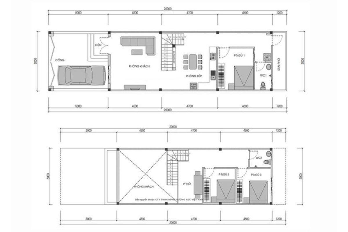
Bản vẽ nhà gác lửng 5×20 kết hợp kinh doanh
Đây là giải pháp cho gia chủ vừa muốn ở vừa tận dụng mặt tiền để buôn bán. Tầng trệt bố trí không gian kinh doanh kết hợp phòng khách, bếp. Tầng lửng và phía sau dành cho phòng ngủ. Mẫu này giúp tiết kiệm chi phí thuê mặt bằng, phù hợp các hộ kinh doanh nhỏ.

Xem thêm: Thiết kế nội thất biệt thự – Dịch vụ trọn gói chuyên nghiệp tại NAIS DESIGN
Chi phí xây dựng nhà gác lửng 5×20
Một trong những điều gia chủ quan tâm nhất khi triển khai bản vẽ thiết kế nhà gác lửng 5×20 chính là chi phí.
Hạng mục | Chi phí ước tính (VNĐ/m2) | Tổng chi phí dự kiến (nhà 100m2) |
Xây dựng phần thô | 3.000.000 – 3.500.000 | 300 – 350 triệu |
Hoàn thiện cơ bản | 5.000.000 – 6.000.000 | 500 – 600 triệu |
Nội thất cơ bản | 2.000.000 – 3.000.000 | 200 – 300 triệu |
Tổng cộng | – | Khoảng 1 – 1,2 tỷ |
Chi phí có thể thay đổi tùy theo vật liệu, thiết kế, phong cách và đơn vị thi công. Gia chủ nên tham khảo nhiều báo giá để có lựa chọn tối ưu.
Lưu ý khi thiết kế bản vẽ nhà gác lửng 5×20
Để công trình vừa đẹp vừa bền vững, cần chú ý các yếu tố sau:
- Chiều cao tầng lửng: Nên từ 2,5m – 2,8m để đảm bảo thoáng mát.
- Bố trí cầu thang hợp lý: Tránh chiếm quá nhiều diện tích, thường đặt sát tường hoặc góc nhà.
- Ánh sáng và thông gió: Bố trí cửa sổ, giếng trời để tránh bí bách.
- Kết cấu chịu lực: Phải được tính toán kỹ lưỡng, đảm bảo an toàn khi sử dụng lâu dài.
Những lưu ý này giúp bản vẽ thiết kế nhà gác lửng 5×20 phát huy tối đa công năng và tính thẩm mỹ.
Một số mẫu bản vẽ thiết kế nhà gác lửng 5×20 đẹp
Nhà gác lửng 5×20 có ưu thế về chiều dài, vì vậy có thể biến tấu theo nhiều phong cách khác nhau. Mỗi mẫu bản vẽ sẽ phù hợp với từng nhu cầu, thẩm mỹ và ngân sách của gia chủ. Dưới đây là một số gợi ý chi tiết để bạn tham khảo:
Bản vẽ nhà gác lửng 5×20 phong cách hiện đại
Phong cách hiện đại được nhiều gia đình trẻ lựa chọn nhờ sự tinh gọn và tính ứng dụng cao. Bản vẽ thường chú trọng bố cục mở, liên thông giữa phòng khách và bếp ăn để tạo cảm giác rộng rãi. Nội thất sử dụng chất liệu kính, gỗ công nghiệp và kim loại nhẹ, mang lại không gian sáng thoáng. Tầng lửng có thể tận dụng làm phòng ngủ hoặc phòng làm việc nhỏ.
Bản vẽ nhà gác lửng 5×20 phong cách tối giản
Nếu bạn yêu thích sự gọn gàng, ít chi tiết, phong cách tối giản là lựa chọn lý tưởng. Bản vẽ hướng đến việc hạn chế tường ngăn, chỉ tập trung vào công năng cần thiết. Màu sắc chủ đạo thường là trắng, xám, kết hợp ánh sáng tự nhiên giúp ngôi nhà thoáng đãng. Gác lửng thường thiết kế dạng mở, nhìn xuống phòng khách để tăng kết nối không gian.

Xem thêm: Các mẫu thiết kế phòng khách sạn đẹp và hiện đại 2025
Bản vẽ nhà gác lửng 5×20 phong cách tân cổ điển
Mẫu tân cổ điển mang lại vẻ sang trọng và tinh tế cho ngôi nhà. Bản vẽ thường chú trọng mặt tiền với các chi tiết phào chỉ, cột trụ mềm mại. Bên trong, không gian được phân chia rõ ràng, nhưng vẫn đảm bảo sự thông thoáng nhờ trần cao. Tầng lửng thường được thiết kế làm phòng thờ hoặc phòng sinh hoạt chung, vừa trang trọng vừa tiện lợi.
Bản vẽ nhà gác lửng 5×20 kết hợp kinh doanh
Đây là mẫu nhà phù hợp với gia chủ muốn tận dụng mặt tiền để mở cửa hàng, quán cà phê hoặc văn phòng nhỏ. Bản vẽ ưu tiên thiết kế tầng trệt rộng rãi cho khu vực kinh doanh, trong khi gác lửng và phía sau dành cho không gian sinh hoạt gia đình. Mẫu này giúp tiết kiệm chi phí thuê mặt bằng, đồng thời tối ưu hóa giá trị sử dụng ngôi nhà.
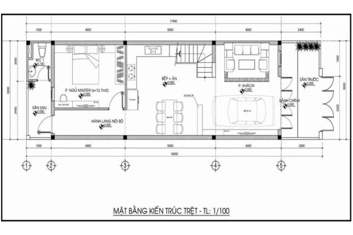
Bản vẽ nhà gác lửng 5×20 có sân trước và giếng trời
Để tăng cường ánh sáng và thông gió, nhiều gia đình lựa chọn mẫu có sân trước kết hợp giếng trời. Bản vẽ này phù hợp với những khu đất có mặt tiền thoáng. Sân trước vừa làm chỗ để xe, vừa là nơi đón gió. Giếng trời đặt ở giữa nhà giúp không gian trong lành, hạn chế cảm giác bí bách thường thấy ở nhà phố ống.

Kết luận
Có thể thấy, bản vẽ thiết kế nhà gác lửng 5×20 không chỉ giúp gia chủ tối ưu diện tích mà còn mang lại không gian sống hiện đại, tiện nghi. Khi lựa chọn bản vẽ phù hợp, gia đình sẽ tiết kiệm chi phí, tận dụng tối đa công năng và đảm bảo tính thẩm mỹ lâu dài.
👉 Để sở hữu ngôi nhà mơ ước, bạn nên tham khảo ý kiến từ kiến trúc sư và lựa chọn đơn vị thiết kế chuyên nghiệp. Một bản vẽ chi tiết, khoa học sẽ là chìa khóa giúp quá trình thi công diễn ra thuận lợi, hạn chế rủi ro và đảm bảo chất lượng công trình. NAIS DESIGN tự hào đồng hành cùng bạn trong hành trình kiến tạo không gian sống lý tưởng – tiện nghi, bền vững và đầy cảm hứng.