Cẩm nang nội thất
Các kiểu mái nhà ống đẹp
Nhà ống là kiểu kiến trúc phổ biến tại Việt Nam nhờ thiết kế gọn...
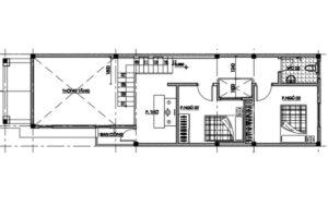
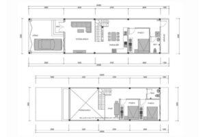
Bản vẽ thiết kế nhà gác lửng 5×20
Trong những năm gần đây, xu hướng xây dựng bản vẽ thiết kế nhà gác...
Bản vẽ thiết kế nhà cấp 4 4×20 – Giải pháp tối ưu cho gia đình nhỏ
Trong những năm gần đây, nhu cầu xây dựng bản vẽ thiết kế nhà cấp...
Bản vẽ thiết kế nhà 8x20m – Giải pháp tối ưu cho không gian hiện đại
Trong những năm gần đây, nhu cầu tìm kiếm bản vẽ thiết kế nhà 8x20m...
Các mẫu nhà ngang 4m dài 20m được ưa chuộng
Trong bối cảnh đất phố ngày càng chật hẹp, mẫu nhà ngang 4m dài 20m...
Các mẫu nhà mái thái gác lửng đẹp
Trong những năm gần đây, mẫu nhà mái thái gác lửng trở thành lựa chọn...
Bản vẽ nhà mái thái là gì? Ưu điểm, mẫu thiết kế và những lưu ý quan trọng
Trong những năm gần đây, bản vẽ nhà mái thái ngày càng được nhiều gia...
Bản vẽ nhà mái lệch – Xu hướng kiến trúc hiện đại
Trong những năm gần đây, xu hướng xây dựng nhà ở hiện đại tại Việt...
Bản vẽ nhà 1 tầng: Giải pháp tối ưu cho không gian sống tiện nghi và tiết kiệm
Ngày nay, nhu cầu xây dựng nhà ở ngày càng đa dạng, trong đó bản...
Bản vẽ nhà cấp 4 3 phòng ngủ 7×15 – Giải pháp tối ưu cho gia đình Việt
Ngày nay, nhu cầu xây dựng bản vẽ nhà cấp 4 3 phòng ngủ 7×15...


